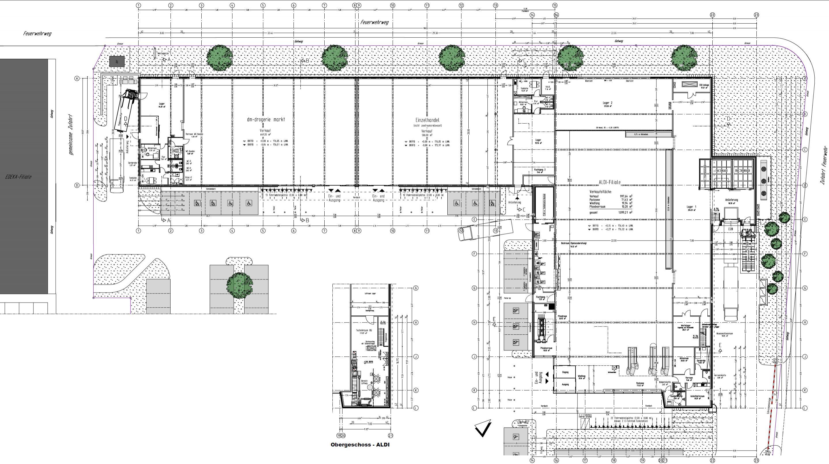
Neubau eines Einkaufzentrums in Kenzingen mit einem ALDI Lebensmittelmarkt, einem dm Drogeriefachmarkt und einem Fahrradhändler

Planung/Fertigstellung
2017 - 2020  
Verkaufsfläche
ALDI ca. 1.000 m²
  dm ca. 650 m²
  Fahrradhändler ca. 590m²
Leistungsphasen
1-9
 

 

Maßnahmen

 

Das Bauvorhaben wurde in zwei Bauabschnitte unterteilt. Alle Märkte werden durch ein Gesamtkonzept zusammengefasst. Durch den Einsatz von Fertigteilen konnten die Gebäude zeitsparend aufgestellt werden. 

zurück zu Projekte